This project was developed as my final-year thesis in the Honours Bachelor of Interior Design program at Sheridan College. Novara is a youth mental health centre designed to support individuals aged 10 and up by creating a welcoming, non-clinical environment that prioritizes comfort, creativity, and community.

The design focuses on shifting the experience of mental health support from one of stigma and isolation to one of connection and growth. Through the integration of biophilic elements, flexible programming spaces, and calming materiality, the centre encourages users to engage in alternative forms of healing such as art, movement, and social interaction.

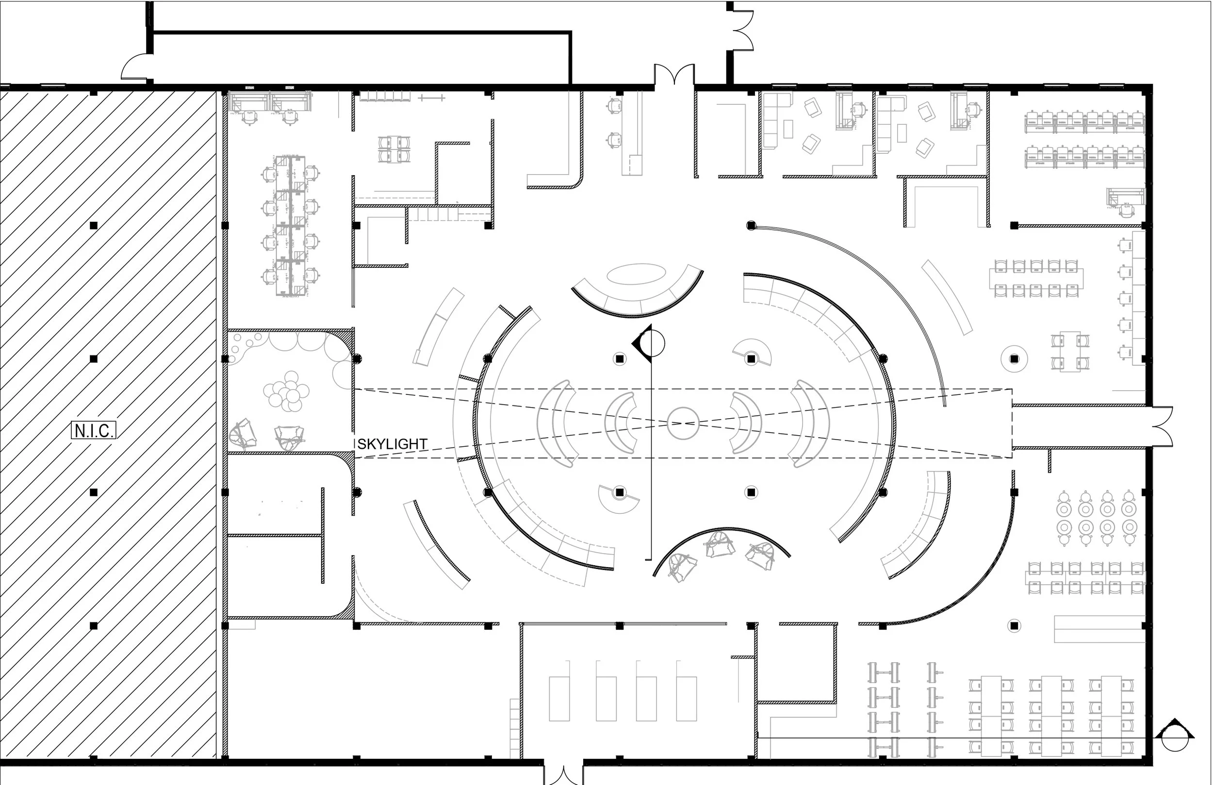
Guided by the concept of movement and balance, the spatial layout promotes a natural flow throughout the building while offering a variety of environments that support both privacy and connection. Novara ultimately aims to empower youth by providing a space where they can move from a state of survival toward one of thriving.

Previous
Previous

Hospitality

Next
Next

Reception Desk