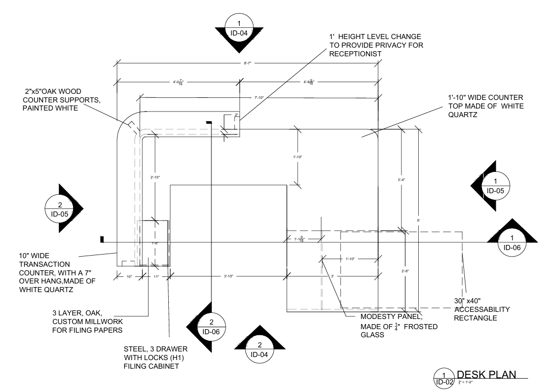
This project was an extension of my Studio Corporate design, focusing on creating a functional and inclusive reception desk for the space. The design prioritized accessibility, ensuring it could be comfortably used by individuals of all abilities. After developing the concept and details of the design process in a workbook, I created a 3D model to bring the concept to life and demonstrate its practicality within the intended environment.

Previous
Previous

Youth Mental Health Centre

Next
Next

Personal Work