For this project, I was asked to design a retail store and was given the jewelry brand Swarovski. For the concept, I chose Crystal Dreams to create a unique, immersive experience. The idea is to take customers on a journey through the stages of dreaming. Entering the store symbolizes falling asleep, with large windows showcasing a preview of the experience. At the center is a crystal tree, representing the most active stage of sleep and serving as a wishing tree where customers can leave dream tags after making a purchase. Finally, the checkout area represents waking up, completing the dreamlike experience.
Floor Plan
Zoning Plan
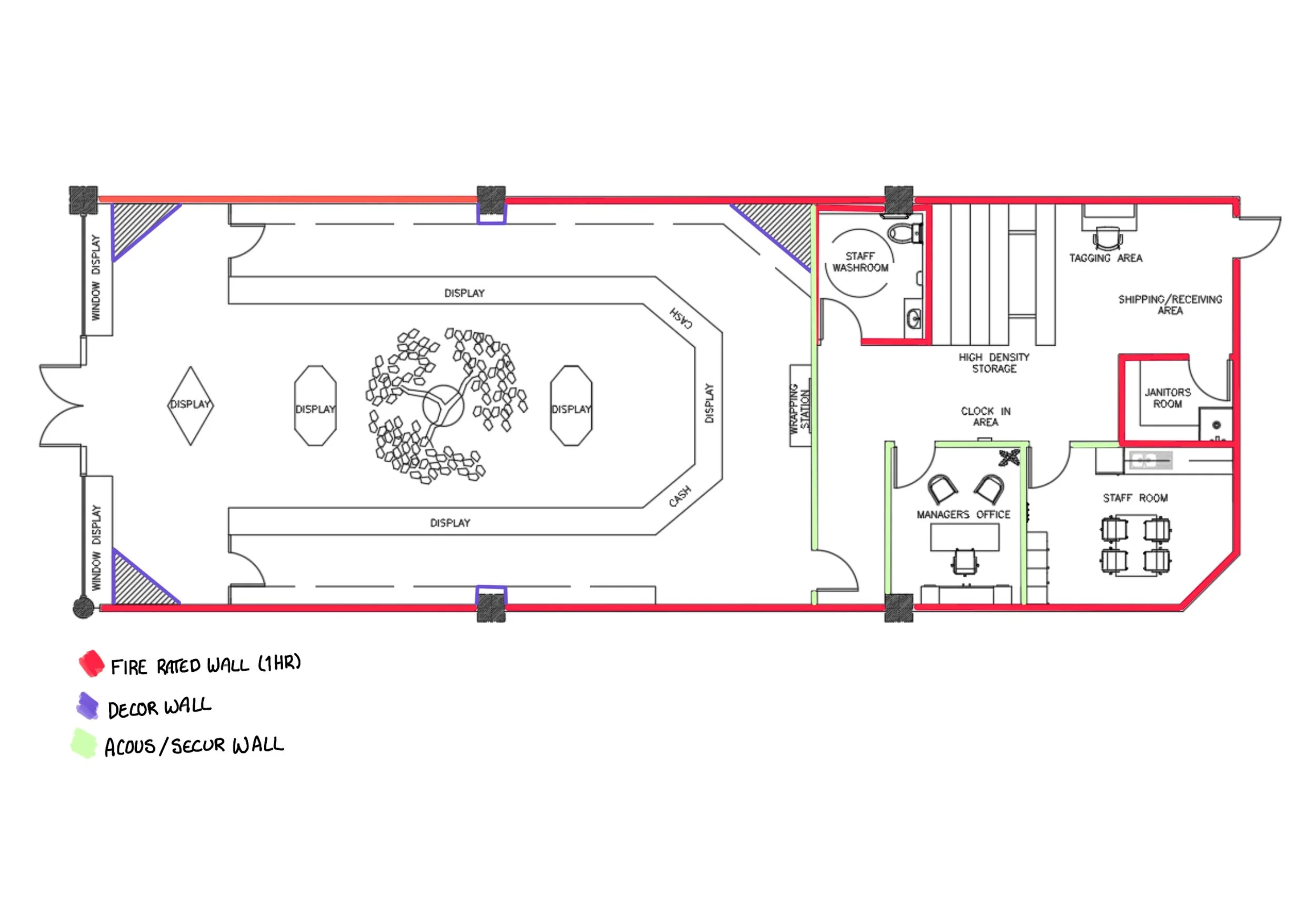
Wall Plan
Security Camera Plan
Lock Plan
Lighting Plan
Section Cuts
Store Front Elevation
Longitude Section
Latitude Section
Store Front Render
Store Rendering
Store Rendering
Store Rendering