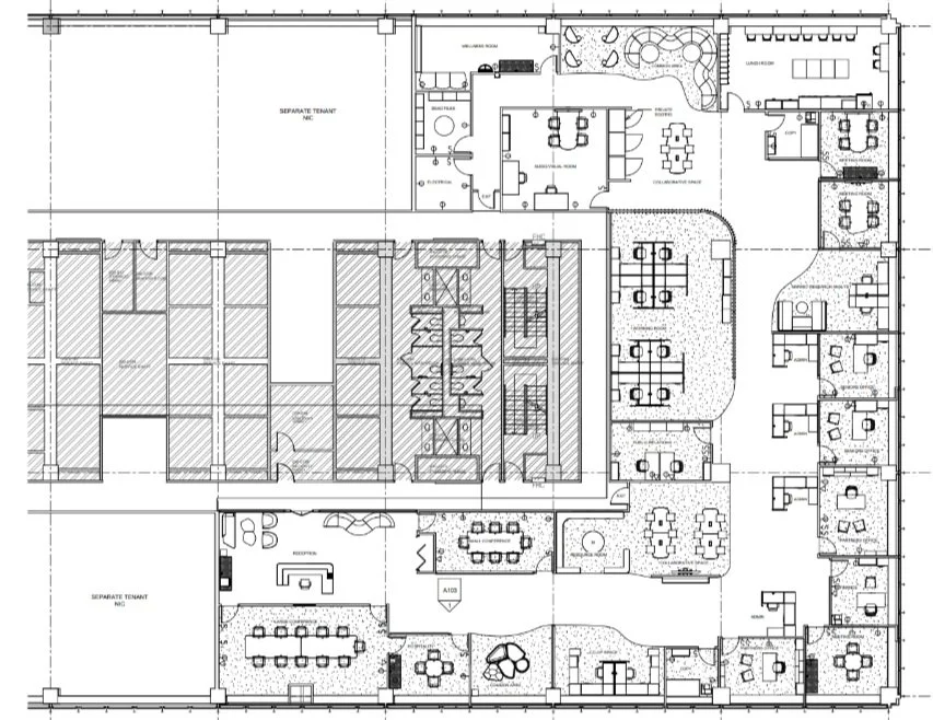
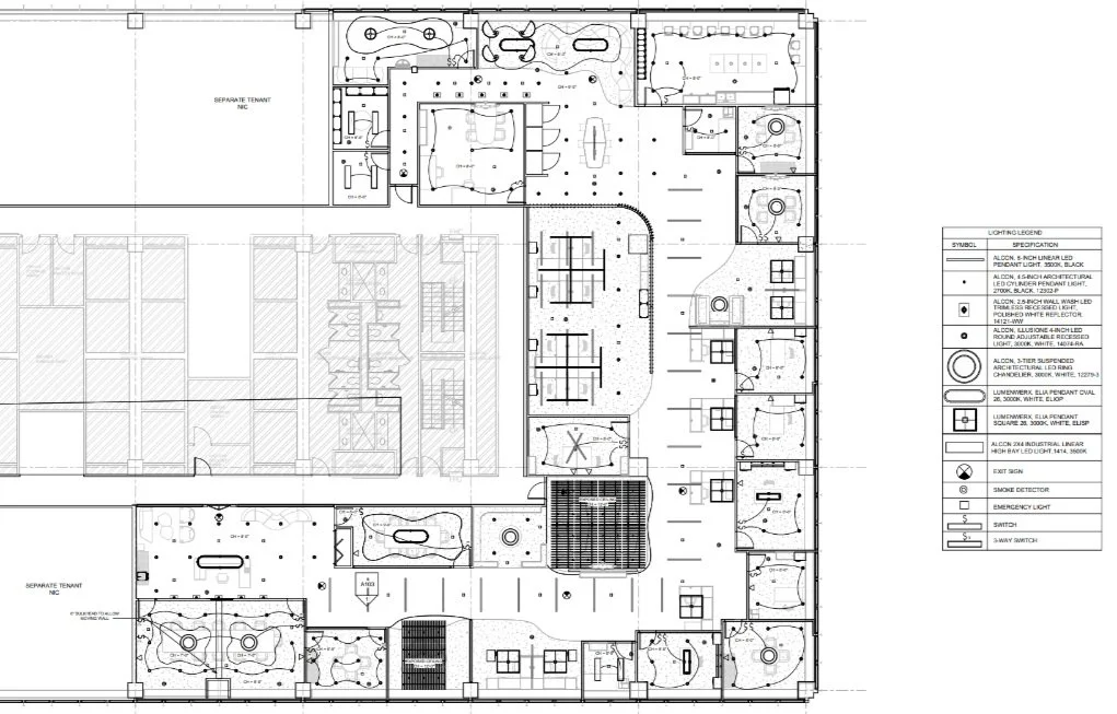
For this project, my partner and I were tasked with designing an office space for a design firm. Our primary goal was to create a welcoming and comforting environment that fosters productivity and creativity. Drawing inspiration from nature, we integrated elements such as water features and living walls to enhance the connection to the natural world. These features, combined with our thoughtful design choices, allowed us to create a workspace that feels serene and grounded while maintaining a professional and functional atmosphere.

Previous
Previous

Retail

Next
Next

Hospitality